

























Kamal House
Description:
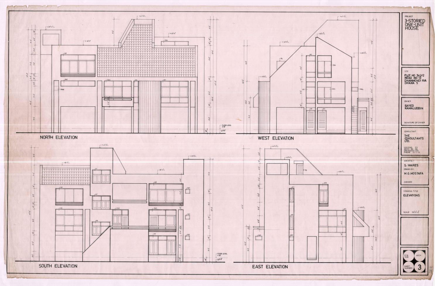
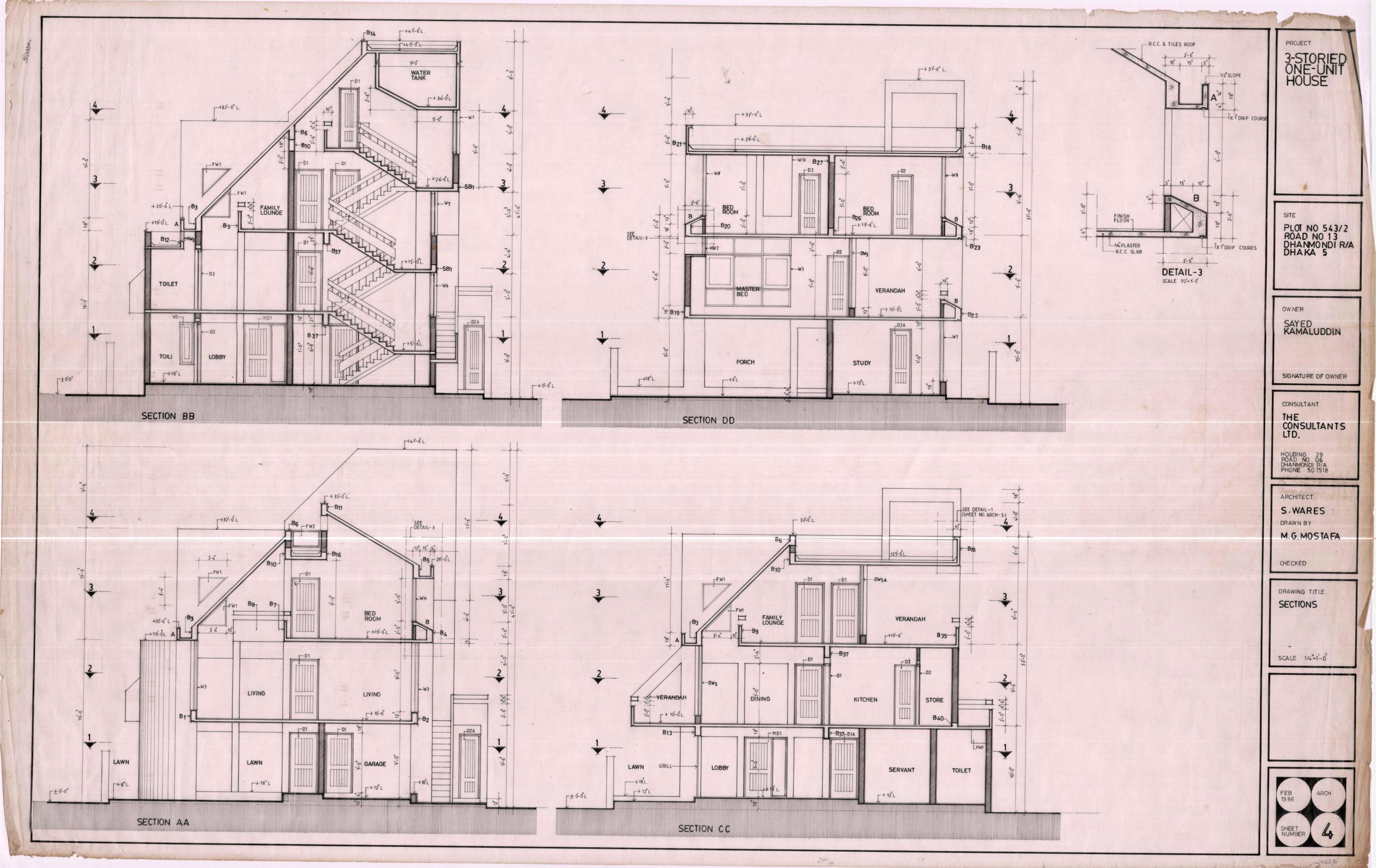
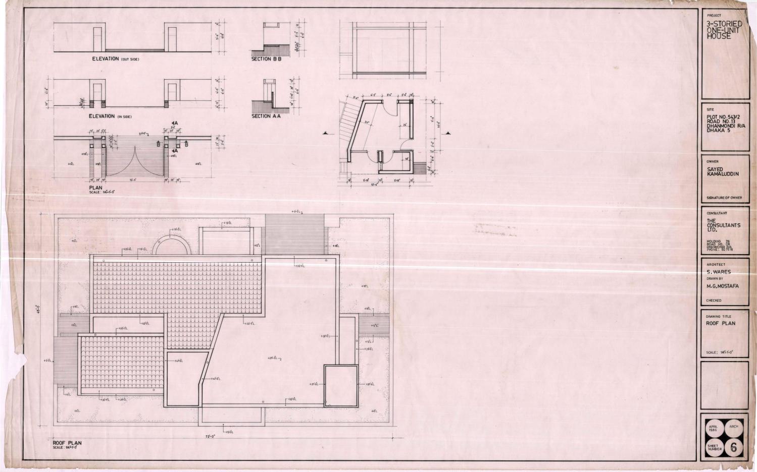
Two triangular volumes (at 45° and 30°) of the building colide face to face to create compaction in the inner volume of spaces. The free-flowing spaces within the small house give an experience of spaciousness. Large glass windows on the south and north provide ample light and air movement. The white walls and the brick tiled-inclined roofs give a sense of domesticity.
Address
Plot No-543/2, Road No-13, Dhanmondi, Dhaka
General Location
Dhaka
Scale
Medium
Height
41’-6”
Owner
Mr. Syed Kamaluddin
Design & Construction Period
1986-1988
Structural Engineer
Md. Saadullah